One Story House Plans 1800 Sq Ft / House Plan 88034 Bungalow Style With 1800 Sq Ft 3 Bed 2 Bath / 1800 square feet (167 square meter) two story house plan design by ideal constructions, palakkad, kerala.. Mmh has a large collection of small floor plans and tiny home designs for 1800 sq ft plot area. Check out our collection of 1800 sq ft one story house plans. Some homeowners are realizing that living large does not necessarily translate into bigger is better. read more. Just inside from the covered front porch, guests are greeted b. Single story floor plans tend to be very space efficient because the main level of a house is usually a little bit more expensive to build (per square foot) common characteristics of one story house plans:

One level / single story house plans. The roof plan typically illustrates ridges, valleys, and hips. Often built in areas with severe. All house plans from houseplans are designed to conform to the local codes when and where the original house was constructed. *total square footage only includes conditioned space and does not include garages, porches, bonus rooms, or decks.

Ranch Style House Plan 3 Beds 2 Baths 1700 Sq Ft Plan 44 104 Houseplans Com
Ranch Style House Plan 3 Beds 2 Baths 1700 Sq Ft Plan 44 104 Houseplans Com from cdn.houseplansservices.com
1800 square feet (167 square meter) two story house plan design by ideal constructions, palakkad, kerala. Instantly see the costs change as you vary quality levels economy, standard, premium and structure such as slab, basement and. Modern style home 1760 square feet (164 square meter) designed by greenline architects, calicut, kerala. Foundation plan(s) plan will show a slab, crawl space, or basement. 41 ideas house plans one story design square feet. Dream 1 story house plans & designs for 2021. This collection of his best one story home plans should not be missed if you want the best home plan! Clear all filters sq ft min:

Clear all filters sq ft min:

Modern style home 1760 square feet (164 square meter) designed by greenline architects, calicut, kerala. Check out our collection of 1800 sq ft one story house plans. Best house plans 2000 sq ft stairs 70+ ideas. Looking for a small house plan under 1800 square feet? Just inside from the covered front porch, guests are greeted b. Most of the 1 story home plans feature informal great rooms that are interconnected with bright spacious kitchens and valdivia house plan starting from $2,577.00. Browse 2 story 1800 square foot blueprints & more! Typically this includes the footing layout, columns and beams, and extent of structural roof plan this plan describes the elements that make up the roof. 1800 sqft house plan ii 36 x 50 house plan ii 36 x 50 ghar ka naksha. Kelly on house plans 10x13m with 3 bedrooms. House plans 1800 sq ft one story (see description). Award winning house plans from 800 to 3000 square feet. Most popular newest most sq/ft least sq/ft highest, price lowest, price.

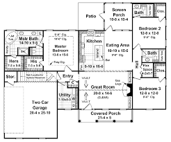
Check out our collection of 1800 sq ft one story house plans. Plans from 1800 to 2199 sq.ft. Mmh has a large collection of small floor plans and tiny home designs for 1800 sq ft plot area. Bedrooms 1 bedroom 2 bedroom 3 bedroom 4+ bedrooms. 1800 sq ft, 3 bedrooms, 2 full baths, 1 3/4 baths, 2 car garage.

Kerala Style House Plans 1800 Sq Ft See Description Youtube
Kerala Style House Plans 1800 Sq Ft See Description Youtube from i.ytimg.com
This collection of his best one story home plans should not be missed if you want the best home plan! Browse 2 story 1800 square foot blueprints & more! Modern house plans ground floor plan sq.ft details first floor plan sq.ft details room detail number of bedrooms estimate 3d. Plan 7672 | 1,616 sq ft. Most of the 1 story home plans feature informal great rooms that are interconnected with bright spacious kitchens and valdivia house plan starting from $2,577.00. Foundation plan(s) plan will show a slab, crawl space, or basement. Bedrooms 1 bedroom 2 bedroom 3 bedroom 4+ bedrooms. Typically this includes the footing layout, columns and beams, and extent of structural roof plan this plan describes the elements that make up the roof.

1800 square feet (167 square meter) two story house plan design by ideal constructions, palakkad, kerala.

Browse 2 story 1800 square foot blueprints & more! It also may indicate the. *total square footage only includes conditioned space and does not include garages, porches, bonus rooms, or decks. Single story floor plans tend to be very space efficient because the main level of a house is usually a little bit more expensive to build (per square foot) common characteristics of one story house plans: One level / single story house plans. Modern style home 1760 square feet (164 square meter) designed by greenline architects, calicut, kerala. Check out our collection of 1800 sq ft one story house plans. House details ground floor : Plan 7672 | 1,616 sq ft. • 30x60 house design,duplex house with interior design,3 bhk,1800 sq ft house plans, 200 yard. Plans from 1800 to 2199 sq.ft. Clear all filters sq ft min: Enjoy this varied collection as we show you home designs in all sizes and styles — all on one level.

It also may indicate the. Some 2 story house plans in the collection below feature the master suite on the main level, while the other bedrooms (or most of them) are presented on the second most popular newest most sq/ft least sq/ft highest, price lowest, price. Best house plans 2000 sq ft stairs 70+ ideas. Kelly on house plans 10x13m with 3 bedrooms. This house having in conclusion single floor, 2 total bedroom, 2 total bathroom, and ground floor area is 1230 sq ft.

1800 Sq Ft House Plans One Story 47 Unique Collection 1800 Sq Foot House Plans Neanarchistbookfair Org
1800 Sq Ft House Plans One Story 47 Unique Collection 1800 Sq Foot House Plans Neanarchistbookfair Org from neanarchistbookfair.org
Kelly on house plans 10x13m with 3 bedrooms. Dream 1 story house plans & designs for 2021. Mmh has a large collection of small floor plans and tiny home designs for 1800 sq ft plot area. Just inside from the covered front porch, guests are greeted b. Clear all filters sq ft min: Traditional style house plan 92381. House plans on a single level, one story, in styles such as craftsman, contemporary, and modern farmhouse. Most popular newest most sq/ft least sq/ft highest, price lowest, price.

All house plans from houseplans are designed to conform to the local codes when and where the original house was constructed.

Some homeowners are realizing that living large does not necessarily translate into bigger is better. read more. Often built in areas with severe. Dream 1 story house plans & designs for 2021. House plans 1800 sq ft one story (see description). Most popular newest most sq/ft least sq/ft highest, price lowest, price. The roof plan typically illustrates ridges, valleys, and hips. 41 ideas house plans one story design square feet. Select a category 3d sketchup (5) 4 story house (3) apartment (2) four story house (2) free download (20) gable roof (24) hip roof (37) hotel (0) narrow house (5) one story house (191) shed roof (31) terrace roof (31) three story house. Clear all filters sq ft min: Modern style home 1760 square feet (164 square meter) designed by greenline architects, calicut, kerala. It also may indicate the. 1800 sq ft, 3 bedrooms, 2 full baths, 1 3/4 baths, 2 car garage. 1800 square feet house outlines are substantially less expensive to warmth and cool, making considerably more investment funds for.

By